Модульные дома под ключ за 30–60 дней
Современные дома из заводских модулей. ЛСТК-каркас, сэндвич-панели, утепление, отделка, коммуникации — всё включено. Монтаж за 1–3 дня. От 480 000 ₴. Доставка по всей Украине.
Проекты модульных домов
6 готовых моделей от 24 до 100 м² — студия для одного, семейный дом или премиум с террасой. Каждая модель изготавливается на заводе PreBuild в Днепре и собирается на вашем участке за 1–3 дня.

Compact — 24 м²
Гостевой дом или дача. Комната-студия с кухонной зоной и отдельный санузел. Идеально для 1–2 человек.

Mini — 36 м²
Полноценный дом с отдельной спальней, кухней-гостиной и санузлом. Для пары или небольшой семьи.

Standard — 48 м²
Две отдельные спальни, просторная кухня-гостиная, санузел и прихожая. Оптимальный вариант для семьи с ребёнком.

Comfort — 60 м²
Две спальни, кухня-гостиная, санузел и крытая терраса. Комфорт загородной жизни с современным дизайном.

Family — 80 м²
Три спальни, два санузла, просторная кухня-гостиная. Полноценный семейный дом для постоянного проживания.

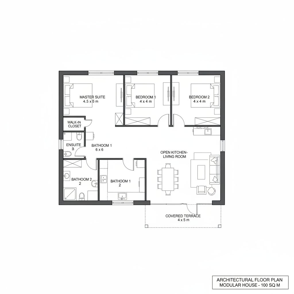
Premium — 100 м²
Три спальни, два санузла, большая кухня-гостиная и роскошная терраса. Премиальное решение для требовательных заказчиков.
Планировки модульных домов
Модульный дом PreBuild — это не «коробка», а продуманное жилое пространство. Ниже — планы этажей каждой модели с размерами комнат. Любую планировку можно изменить под ваши потребности.
Compact — 24 м²

- Комната-студия: 4,0 × 5,0 м (20 м²)
- Санузел: 2,0 × 2,0 м (4 м²)
- Кухонная зона интегрирована
Идеально как гостевой дом, дача или первое собственное жильё.
Mini — 36 м²

- Спальня: 3,0 × 4,0 м (12 м²)
- Кухня-гостиная: 4,0 × 5,0 м (20 м²)
- Санузел: 2,0 × 2,5 м (5 м²)
Полноценная квартира на собственной земле. Отдельная спальня для комфорта.
Standard — 48 м²

- Спальня 1: 3,5 × 4,0 м (14 м²)
- Спальня 2: 3,0 × 3,5 м (10,5 м²)
- Кухня-гостиная: 4,0 × 5,0 м (20 м²)
- Санузел: 2,5 × 3,0 м (7,5 м²)
Самая популярная модель. Достаточно места для семьи с ребёнком.
Comfort — 60 м²

- Спальня 1: 4,0 × 4,0 м (16 м²)
- Спальня 2: 3,5 × 3,5 м (12 м²)
- Кухня-гостиная: 5,0 × 5,0 м (25 м²)
- Санузел: 3,0 × 2,5 м (7,5 м²)
- Терраса: 3,0 × 3,5 м (10 м²)
Пространство для отдыха: крытая терраса для завтраков на свежем воздухе.
Family — 80 м²

- Спальня 1 (master): 4,0 × 4,5 м (18 м²) + санузел
- Спальня 2: 3,5 × 4,0 м (14 м²)
- Спальня 3: 3,5 × 4,0 м (14 м²)
- Кухня-гостиная: 5,0 × 6,0 м (30 м²)
- 2 санузла
Семейный дом: отдельная master-зона и две детские комнаты.
Цены на модульные дома — 2026
Сколько стоит модульный дом в 2026 году? Цена зависит от площади и комплектации. Ниже — прайс PreBuild с двумя вариантами: только комплект (каркас + панели + окна + двери) или полное решение под ключ (с фундаментом, отделкой, коммуникациями).
| Модель | Площадь | Комнаты | Комплект | Под ключ |
|---|---|---|---|---|
| Compact | 24 м² | Студия | от 280 000 ₴ | от 480 000 ₴ |
| Mini | 36 м² | 1 + 1 | от 420 000 ₴ | от 720 000 ₴ |
| Standard | 48 м² | 2 + 1 | от 560 000 ₴ | от 960 000 ₴ |
| Comfort | 60 м² | 2 + терраса | от 700 000 ₴ | от 1 200 000 ₴ |
| Family | 80 м² | 3 + 1 | от 930 000 ₴ | от 1 600 000 ₴ |
| Premium | 100 м² | 3 + терраса | от 1 160 000 ₴ | от 2 000 000 ₴ |
| Индивидуальный проект | по расчёту | |||
«Под ключ» включает: фундамент (винтовые сваи или монолитная плита), ЛСТК-каркас, сэндвич-панели стен и крыши, окна, входные и межкомнатные двери, электропроводка со щитком, сантехника (ванна/душ, унитаз, умывальник, бойлер), внутренняя отделка (стены, пол, потолок), фасадная отделка.
Получить точный расчёт для вашего дома
Укажите желаемую площадь и город — рассчитаем стоимость за 15 минут.
Залишити заявку
Ми зателефонуємо та відповімо на всі питання
Комплектация модульного дома
Модульный дом PreBuild — это не только «коробка». Мы предлагаем два уровня комплектации: Standard и Premium. Оба варианта включают полную отделку и коммуникации — вы получаете готовый для проживания дом.
| Элемент | Standard | Premium |
|---|---|---|
| Каркас | ЛСТК оцинкованный | ЛСТК усиленный, двойная обвязка |
| Стены | Сэндвич-панель 100 мм (R=4,05) | Сэндвич-панель 150 мм (R=6,0) |
| Окна | Металлопластик, 2-камерный стеклопакет | 3-камерный с энергосбережением |
| Входная дверь | Металлическая утеплённая | Металлическая с терморазрывом |
| Межкомнатные двери | МДФ, стандарт | Массив или шпон |
| Пол | Ламинат 32 класс | Ламинат 33 класс + тёплый пол |
| Санузел | Базовая сантехника + бойлер 50 л | Премиум сантехника + бойлер 100 л |
| Электрика | Разводка + щиток + освещение | Полная автоматика + розетки USB |
| Фасад | Металлосайдинг | Фиброцементная панель / HPL |
| Потолок | Подшивной (гипсокартон) | Натяжной потолок |
| Вентиляция | Естественная | Принудительная с рекуперацией |
Строительство модульного дома — 4 этапа
Общий срок от заказа до заселения: 30–60 дней. Производство на заводе PreBuild в Днепре обеспечивает заводской контроль качества — в отличие от традиционного строительства, где результат зависит от бригады.
Фиксированная цена: после подписания договора стоимость не меняется. Никаких скрытых доплат, роста цен на материалы или «непредвиденных расходов».
Модульный дом vs обычное строительство
Сравнение модульного дома с традиционным строительством в 2026 году: модульная технология PreBuild позволяет получить готовый дом в 10–20 раз быстрее и на 30–40% дешевле кирпичного аналога.
| Параметр | Модульный дом | Обычное строительство |
|---|---|---|
| Срок строительства | 30–60 дней | 12–18 месяцев |
| Контроль качества | Заводской, на каждом этапе | Зависит от бригады |
| Цена | Фиксированная от подписания договора | Постоянный рост материалов |
| Утепление | Встроенное, R = 4,05–6,0 | Нужно отдельно + дополнительная стоимость |
| Сезонность | Сборка круглый год, даже зимой | Только тёплый сезон (апрель–октябрь) |
| Переезд | Полный демонтаж и перенос | Невозможно |
| Энергоэффективность | Сэндвич-панель = кирпичная стена 1,2 м | Требует дополнительного утепления |
Наши проекты
PreBuild — производитель модульных домов в Днепре с 2020 года. Более 200 сборных объектов по всей Украине. Ниже — примеры реализованных проектов.

Дом в пригороде Днепра
Модульный дом Standard для молодой семьи. Монтаж за 2 дня. Стоимость под ключ: 980 000 ₴.

Загородный дом, Полтавская обл.
Дом Comfort с террасой для отдыха на природе. Полная отделка Premium. Срок: 45 дней.

Дачный дом, Киевская обл.
Компактный дом Mini для дачи. Утепление 100 мм — комфортное проживание круглый год. Цена: 740 000 ₴.
Хотите такой дом? Оставьте заявку
Позвоним, подберём модель и рассчитаем стоимость под ключ для вашего участка.
Залишити заявку
Ми зателефонуємо та відповімо на всі питання
Частые вопросы
Модульные дома по всей Украине — PreBuild
PreBuild — производитель модульных домов в Днепре. Доставляем и монтируем по всей Украине. Более 200 реализованных объектов.
Гарантии PreBuild
Получите бесплатный расчёт модульного дома за 15 минут
Оставьте имя и номер — позвоним, подберём оптимальную модель и рассчитаем точную стоимость.
Залишити заявку
Ми зателефонуємо та відповімо на всі питання
